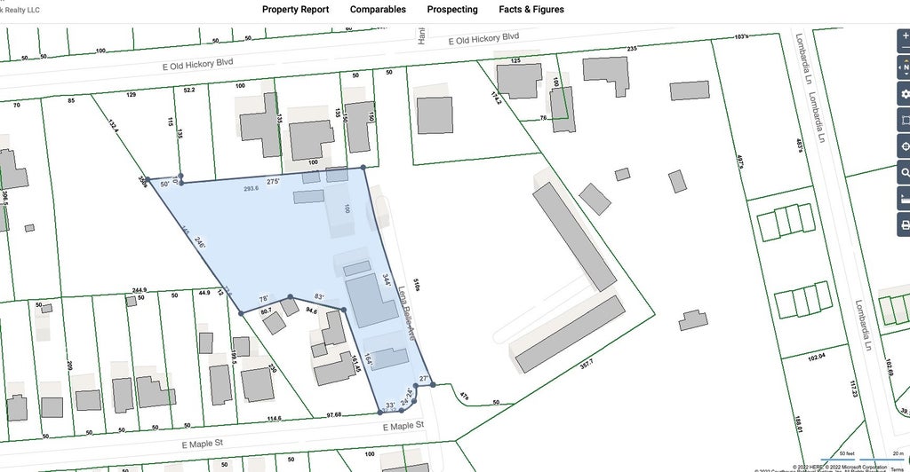
About 549 E Maple St
INVESTMENT OPPORTUNITY, heart of Madison TN ... and a very versatile property. Motivated Seller. 1.54 acre tract w/ 1000 s/f brick home. Multiple buildings and pavilions on property (over 4400 s/f). Property is currently zoned Residential and is projected to be zoned RM15. House has been renovated, along with a 30 x 66 (approx) building that was used for a music venue, totally renovated and could be used as a second home, apartment for rental (2 bathrooms / kitchen space / no appliances). There is also a 1200 s/f 4-bay mechanic shop complete w/ oil pit, bathrooms on the property, along w/ worshops, a 20 x 40 utility building, 50-amp plugs available in multiples places over the property. Natural Gas available throughout the property.
Features of 549 E Maple St
| MLS® # | 2992232 |
|---|---|
| Price | $565,000 |
| Bedrooms | 3 |
| Bathrooms | 1.00 |
| Full Baths | 1 |
| Square Footage | 1,100 |
| Acres | 1.54 |
| Year Built | 1955 |
| Type | Residential |
| Sub-Type | Single Family Residence |
| Style | Ranch |
| Status | Active |
Community Information
| Address | 549 E Maple St |
|---|---|
| Subdivision | None |
| City | Madison |
| County | Davidson County, TN |
| State | TN |
| Zip Code | 37115 |
Amenities
| Utilities | Electricity Available, Water Available |
|---|---|
| Parking Spaces | 2 |
| Garages | Attached, Gravel |
| Is Waterfront | No |
| Has Pool | No |
Interior
| Appliances | Dishwasher |
|---|---|
| Heating | Central, Electric |
| Cooling | Central Air, Electric |
| Fireplace | No |
| # of Stories | 1 |
Exterior
| Roof | Asbestos Shingle |
|---|---|
| Construction | Brick |
School Information
| Elementary | Stratton Elementary |
|---|---|
| Middle | Madison Middle |
| High | Hunters Lane Comp High School |
Additional Information
| Date Listed | September 10th, 2025 |
|---|---|
| Days on Market | 55 |
| Foreclosure | No |
| Short Sale | No |
Listing Details
| Office | simpliHOM |
|---|
