About 901 Roosevelt Ave
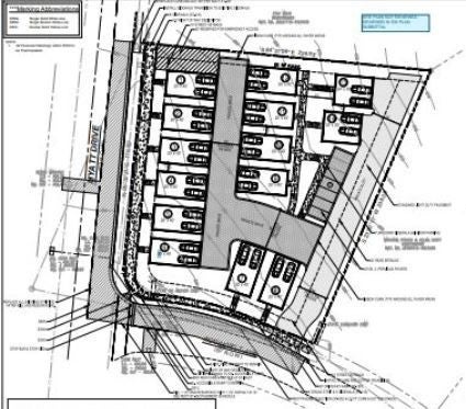
SVN Accel Commercial Real Estate is thrilled to present a fully entitled, shovel-ready opportunity to develop 14 single-family homes in the coveted Nashville suburbs - Madison, Tn. Ideally positioned on a spacious ±1.01-acre site, this property offers approved grading permits and comprehensive architectural, civil, and engineering plans, allowing for immediate ground-breaking. With existing water, sewer, and electrical services on site, the property minimizes timelines and risks. The SP: Specific Plan District zoning not only allows for short-term rental use but also offers flexibility for additional commercial applications, enhancing the property's income potential. This unparalleled opportunity is perfectly poised for residential investment and promises a seamless path to development success. All are STR eligible.
Features of 901 Roosevelt Ave
| MLS® # | 3030970 |
|---|---|
| Price | $899,900 |
| Bathrooms | 0.00 |
| Acres | 1.01 |
| Type | Land |
| Status | Active |
Community Information
| Address | 901 Roosevelt Ave |
|---|---|
| Subdivision | Cottages At 901 Roosevelt |
| City | Madison |
| County | Davidson County, TN |
| State | TN |
| Zip Code | 37115 |
Amenities
| Is Waterfront | No |
|---|---|
| Has Pool | No |
Interior
| Fireplace | No |
|---|
Exterior
| Lot Description | Cleared |
|---|
School Information
| Elementary | Amqui K-8 School |
|---|---|
| Middle | Amqui K-8 School |
| High | Hunters Lane Comp High School |
Additional Information
| Date Listed | October 20th, 2025 |
|---|---|
| Days on Market | 5 |
| Zoning | SP |
| Foreclosure | No |
| Short Sale | No |
Listing Details
| Office | SVN Accel Commercial Real Estate |
|---|
